
更多(duo)產品查(cha)看企業官網:




更多產品查看(kan)企業官網:
1.1.1 基車介紹
廈門金龍(9米)XMQ5130XYL體檢車參數表 | ||||
車型 | XMQ5130XYL醫療車 | |||
技術參數 | 長 | 8995mm | 座位數 | 0+1 |
寬 | 2500mm | 光盤座位數 | 2-9 | |
高 | 3315,3385,3455,3515,3580,3650mm | 總質量 | 13000kg | |
軸距 | 4300mm | 整備質量 | 9895,10500,11150,11370kg | |
1.1.2 基礎車配置
項目 | 標準配置 | |
底盤配置 | 發動機 | YCS06 270-62 |
排放標準 | 國六 | |
發動機型式 | 直(zhi)列、六缸、液(ye)冷(leng)(leng)、增壓(ya)中(zhong)冷(leng)(leng)、高(gao)壓(ya)共軌(gui)柴油(you)機 | |
行車制動 | 前后鼓式 | |
緩速器 | - | |
ABS | WABCO ABS | |
變速器 | 國產六檔變速箱 | |
變速箱操縱機構 | 兩軟軸遠距離操縱器 | |
離合器 | 國產鐵流 | |
懸架 | 鋼板彈簧 7/10 | |
輪胎 | 10R22.5無內胎子午線 | |
油箱 | 252L | |
集中潤滑系統 | 無 | |
車身配置 | 承載方式 | 半承載車身 |
乘客門 | 前中全鋁遙控外(wai)擺乘客門 | |
司機椅 | 仿皮機械(xie)減震可(ke)調司機椅(三點式安(an)全(quan)帶) | |
側窗 | 全封閉鋼化玻璃 左右(you)最后一扇(shan)上(shang)推拉窗(下固(gu)定(ding)) | |
天窗 | 1個換氣扇頂風窗 | |
后視鏡 | 電動電除霜兔耳式后視鏡 | |
側圍內飾 | PVC板 | |
側倉門 | 手動外翻式全鋁倉門 | |
出風口 | 簡易出風口 | |
油漆 | 素色漆 | |
電器空調 | 空調 | 金龍KL-IVY/奧柯壓(ya)縮機/2.2萬大卡非獨立空調 |
暖風 | 無 | |
除霜 | 240W無外循環除(chu)霜機 | |
KL-988 | 金龍KL-988專業(ye)版(ban) | |
行車記錄儀 | 有行車記錄儀 | |
行車記錄打印機 | 有行車記錄儀打印機 | |
服務設施 | 滅火器 | 4kg*1 |
發動機艙自動滅火(huo)裝置(zhi) | 有 | |
防盜報警安全錘 | 3把 | |
前擋遮陽簾 | 單幅前檔遮陽簾 | |
1.1.3 改裝配置
模塊 | 序號 | 項目名稱 | 數量 | 備注 |
登記準備區 | 1 | 操作工作臺 | 1個 | 不銹鋼 |
2 | 休息座椅 | 2個 | ||
3 | 工作圓凳 | 1個 | ||
DR檢查區 | 1 | 機房 | 1套 | |
2 | 電動鉛門 | 2套 | ||
3 | 鉛房防護 | 1套 | 2-3mm鉛板防(fang)護,輻射量遠(yuan)小于(yu)國家標準(zhun) | |
4 | DR機(選裝) | 0套 | 選配 | |
B超/心電檢查區 | 1 | B超/心電檢查床 | 1張 | 下(xia)為木質(zhi)儲(chu)物柜,上有床墊 |
2 | 檢查室 | 1套 | 拉簾隔斷 | |
3 | 工作臺 | 1個 | 不銹鋼 | |
4 | 工作圓凳 | 1個 | ||
其他區域 | 1 | 工作臺 | 1套 | 不銹鋼 |
2 | 休息沙發 | 2個 | ||
3 | 垃圾桶 | 1個 | ||
4 | 圓凳 | 1個 | ||
設備(bei)、供能及電路改裝 | 1 | 房車吸頂空調 | 1臺 | 國內知名品牌 |
2 | 壁掛空調 | 1臺 | 冷暖空調2P | |
3 | 配電柜箱體 | 1套 | 含電源(yuan)轉換開(kai)關、斷路器和保險 | |
4 | 逆變器 | 1個 | 3KW | |
5 | 整車醫療束線 | 整車 | 布線需符合市電、車電要求,防火,耐腐蝕 | |
6 | 組合五孔插座 | 20個 | 安裝位置現場待定 | |
7 | 市配電系統 | 1套 | ||
8 | 卷線盤帶電纜插頭 | 1套 | 30米 |
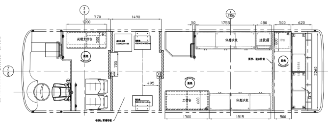
1.1.4 布置圖

更多產品查看企(qi)業官網: