



更(geng)多產品查看(kan)企(qi)業(ye)官(guan)網:
1.1 基車參數
車型 | XMQ5250XYL醫療車 |
技術參數 | 長 | 12990mm | 公告座位數 | 2-9 |
高 | 3670,3740,3810,3880,3960mm |
寬 | 2550mm | 總質量 | 25000kg |
軸距 | 6000+1350mm | 整備質量 | 21600,22800,24100kg |
最小離地間隙 | 155mm | 車廂內高 | 2090mm |
性能參數 | 最大爬坡能力 | 30(%) | 制動距離(初(chu)速30km/h) | ≤10 |
最小轉彎直徑 | 24(m) | 駐坡(po)制動能力(20%坡(po)道) | 5min不動 |
100km/h |
1.2 基車配置
項目 | 標準配置 | 選裝配置 |
底盤配置 | 排放標準 | 國六 |
發動機型號 | WP10H375E62 | / |
額定功率 | 276(kw) | / |
最大扭矩 | 1800/1000-1400(N.m/r/pm) |
排氣量 | 9.500(L) | / |
發動機型式 | 直列、六(liu)缸(gang)、液冷、增壓中冷、高壓共軌柴油(you)機 |
前橋 | 東風德納7T | 方盛7T |
型式 | 工字型斷面,兩端拳式 |
|
中橋 | 東風德(de)納11.5T(3.55) | 方盛11.5T |
型式 | 單級減速、全浮式 |
|
隨動橋 | 東風德納7.5T | 方盛7.5T |
行車制動 | 前盤(pan)(國(guo)產)\中(zhong)盤(pan)(國(guo)產)\后盤(pan)(國(guo)產) | 前盤(pan)(瀚德(de))\中盤(pan)(瀚德(de))\后盤(pan)(瀚德(de)) |
緩速器 | 泰樂瑪電渦流緩速器 | 特爾佳電渦流緩速器 |
ABS | WABCOABS | / |
變速器 | 法士特6DS180T | / |
變速箱操縱機構 | 三軟軸 | 氣助力兩軟軸 |
離合器 | 鐵流¢430離合器 | SACHS離合器 |
懸架 | 空氣懸架 | / |
輪胎 | 295/80R22.5雙錢(qian) | 295/80R22.5三角/米(mi)其林/普(pu)利司通(tong)(tong)/佳通(tong)(tong) |
| 315/80R22.5米(mi)其林/三角/雙錢 |
油箱 | 260L | / |
方向機 | ZJ120C | ZF8098 |
風扇電離合器 | ICS電子風扇 | / |
集中潤滑系統 | 無 | 奧特集中潤滑 |
CAN總線 | 威帝簡(jian)化(hua)版CAN總線儀表 | / |
車身配置 | 承載方式 | 半承載車身 | / |
乘客門 | 全鋁遙控前乘客門 | / |
司機椅 | 仿皮機械減震司機椅 | 氣囊減震可調司機椅 |
側窗 | 全封閉綠色鋼化玻璃 | 左右最后一扇內嵌上推(tui)拉 |
司機窗 | 內嵌推拉司機窗 | 電動司機窗 |
天窗 | 單天窗 | / |
后視鏡 | 電(dian)動電(dian)除霜兔耳式后(hou)視鏡 | / |
側倉門 | 全鋁/鐵(tie)鉸鏈行(xing)李艙門 | 全鋁/手動外擺行李艙(cang)門 |
油漆 | 素色漆 | 金屬漆 |
暖風 | 無暖風 | 非獨立水暖獨立水暖 |
除霜 | 南風(feng)240W無外循環除霜機 | 380W外循(xun)環除霜機 |
KL-988 | 金(jin)龍KL-988專業版 | 金龍KL-988影音版(ban) |
行車記錄儀 | 有行車記錄儀 | / |
服務設施 | 滅火器 | 4kgx1 |
發動機艙自動滅(mie)火裝(zhuang)置 | 有 |
防盜報警安全錘 | 3把 |
時間單顯電子鐘 | 時間溫濕示電子鐘 |
單幅(fu)手動剪(jian)刀式前擋遮陽簾(lian) | 雙幅前檔前擋遮陽簾 |
司機側遮陽簾 | / |
有車載電源(yuan)插(cha)座/USB、GPS與北(bei)斗(dou)雙模定位系統 | / |
1.3 改裝配置
| 序號 | 配置 | 單位 | 數量 | 備注 |
外飾改裝 | 1 | 液壓支撐系統 | 套 | 1 | 4缸液壓調平 |
2 | 檢修門 | 個 | 1 | 用于CT安裝及檢修 |
3 | 滑移倉 | 個 | 1 | 左側(ce)滑移(yi)倉(可選(xuan)雙側(ce)) |
4 | 爬梯 | 個 | 1 |
|
5 | 安全門 | 個 | 1 | CT檢查室右側 |
駕駛區 | 1 | 吸頂房車空調 | 個 | 1 | 1.5P |
2 | 座椅 | 個 | 4 | 背部可調,帶安全帶 |
CT檢查室 | 1 | 鉛防護 | 套 | 1 |
|
2 | 電動鉛門 | 扇 | 3 | 帶鉛玻璃,帶防夾 |
3 | 壁掛空調 | 個 | 2 | 2P冷熱 |
4 | 消毒燈 | 個 | 6 | 30W |
5 | CT機 | 臺 | 1 | 選裝 |
CT操作間 | 1 | 吸頂房車空調 | 個 | 1 | 1.5P |
2 | 工作臺 | 個 | 2 | 大理石臺面+免漆板 |
3 | 鉛玻璃觀察窗 | 個 | 1 | 5mm鉛當量玻璃 |
4 | 消毒燈 | 個 | 2 | 30W |
5 | 儲物柜 | 套 | 1 | 免漆板 |
電路供電改裝 | 1 | 市電電源配電系統 | 套 | 1 | 漏電保護開(kai)關、斷路器等 |
2 | 逆變充電一體機 | 臺 | 1 | 3000W,啟動(dong)駕(jia)駛室行(xing)車空調 |
3 | 五孔插座面板 | 套 | 1 | 按車內實際布置 |
4 | 交流基礎布線 | 項 | 1 |
|
5 | 外接(jie)電源接(jie)口、電纜盤 | 套 | 2 | 30外接米AC380V 50米外接AC220V電纜卷盤 |
通用改裝 | 1 | 整車內飾改裝 | 套 | 1 |
|
2 | 車內照明 | 套 | 1 |
|
3 | 監控系統 | 套 | 1 |
|
4 | 千兆交換機 | 個 | 1 |
|
5 | 窗口式對講機 | 套 | 1 |
|
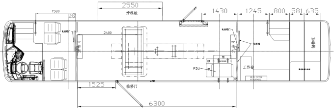
1.4 布置圖


更(geng)多產品查看(kan)企業官網(wang):